Rif: IMMO-93100696
RIVALTA DI TORINO
TORINO
Rivalta di Torino San Vittore! In uno dei contesti più esclusivi e rinomati del nostro paese proponiamo in vendita importante Villa Edificata a ridosso degli anni 70 , caratterizzata da una totale indipendenza su 4 lati e una considerevole metratura che la compone .
L'immobile costruito e appartenuto sempre alla stessa famiglia è stato progettato con sistemi all'epoca già di avanguardia come ad esempio l'impianto solare termico , i doppi vetri , gli avvolgibili elettrici e molto altro. Disabitato da diverso tempo oggi richiede sicuramente un intervento di modernizzazione e di ristrutturazione , tenendo particolare conto che l'immobile si presta a tutte le possibili attività comprese nei "bonus edilizi" presenti al momento consentendo quindi notevoli agevolazioni e grandi risparmi economici sui costi di riqualificazione.
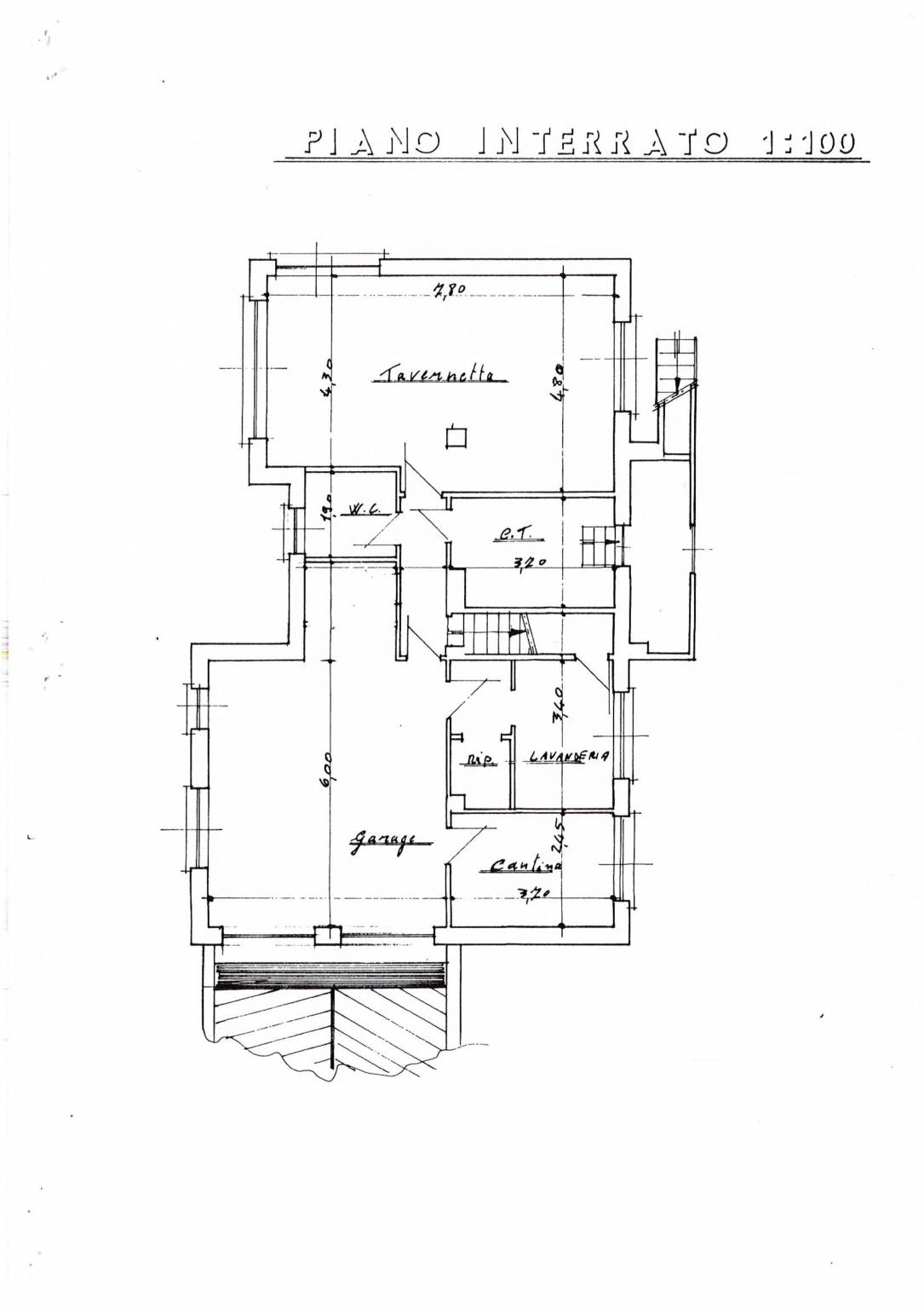
350 mq abitativi disposti su 3 livelli di cui un piano mansardato completamente sfruttabile , danno spazio a qualsiasi tipo di esigenza e di design , in più sono presenti due Box auto attigui con basculanti elettrici e il giardino circostante di circa 500 mq allestito con zona Barbecue.
L'immobile con un accurato studio si può prestare anche a futura bifamiliare con accessi indipendenti. Per qualsiasi tipo di informazione o per prendere un appuntamento contattare ufficio immobiliare Centrocase 011.90.90.601
L'immobile costruito e appartenuto sempre alla stessa famiglia è stato progettato con sistemi all'epoca già di avanguardia come ad esempio l'impianto solare termico , i doppi vetri , gli avvolgibili elettrici e molto altro. Disabitato da diverso tempo oggi richiede sicuramente un intervento di modernizzazione e di ristrutturazione , tenendo particolare conto che l'immobile si presta a tutte le possibili attività comprese nei "bonus edilizi" presenti al momento consentendo quindi notevoli agevolazioni e grandi risparmi economici sui costi di riqualificazione.
350 mq abitativi disposti su 3 livelli di cui un piano mansardato completamente sfruttabile , danno spazio a qualsiasi tipo di esigenza e di design , in più sono presenti due Box auto attigui con basculanti elettrici e il giardino circostante di circa 500 mq allestito con zona Barbecue.
L'immobile con un accurato studio si può prestare anche a futura bifamiliare con accessi indipendenti. Per qualsiasi tipo di informazione o per prendere un appuntamento contattare ufficio immobiliare Centrocase 011.90.90.601
Consistenze
| Descrizione | Superficie | Sup. comm. |
|---|---|---|
| Principali | ||
| Immobile - piano terra | 150 Mq | 150 Mqc |
| Mansarda - 1° piano | 110 Mq | 110 Mqc |
| Altro - seminterrato | 140 Mq | 140 Mqc |
| Totale | 400 Mqc | |
